Projects
About us
Services
Contacts
rus
SOZIDAI
MAIN
ABOUT US
PROJECTS
SERVICES
CONTACTS
RU
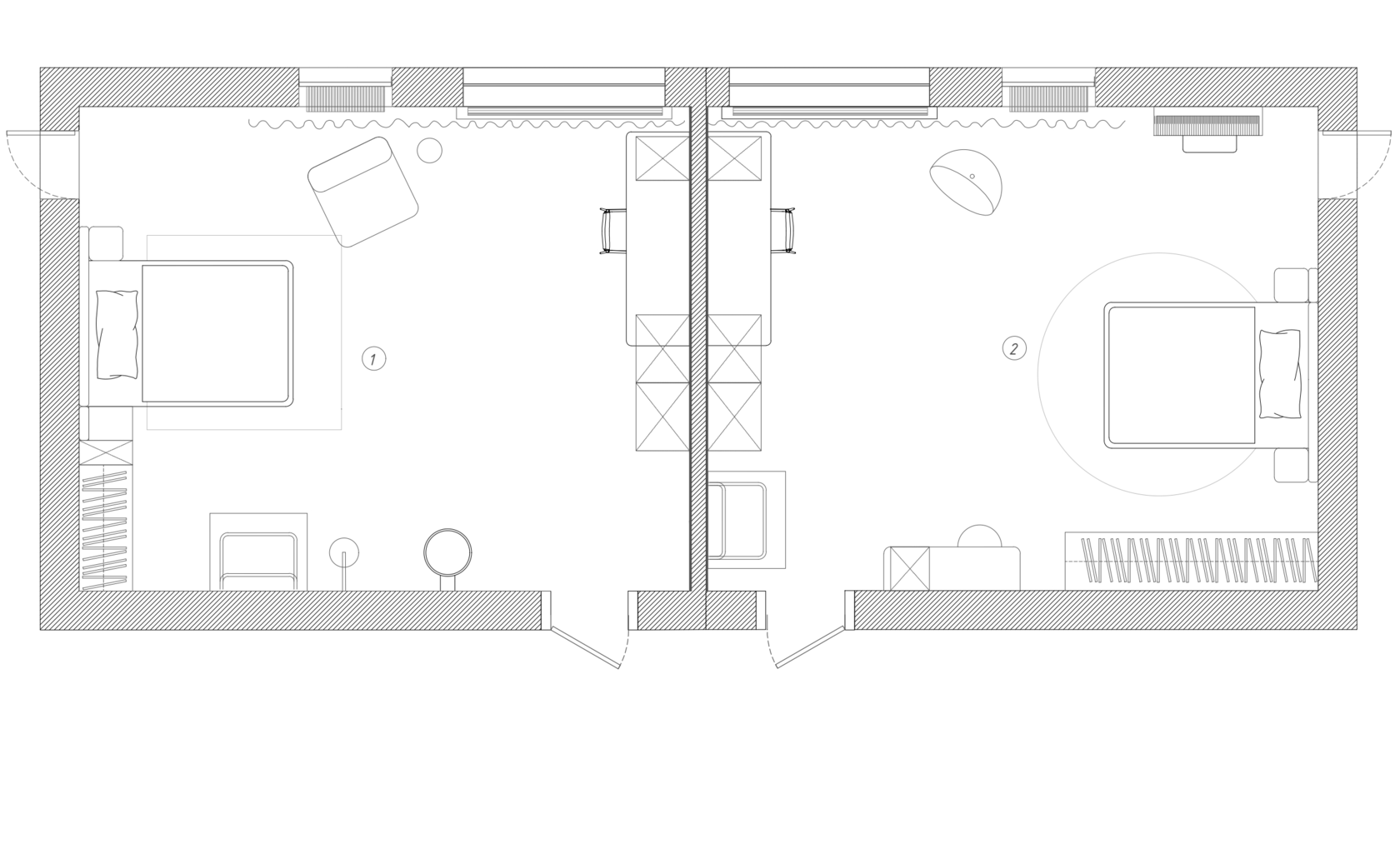
op house
TOTAL AREA: 64 М2
COMPLETED IN 2023
plan
SOZIDAI
Made on
Tilda